logo casetraprivati
Modica > Case - Appartamenti in Vendita >

in vendita a Modica

SP32, Modica
PRIVATO VENDE
145.000 €
superficie 230 m²

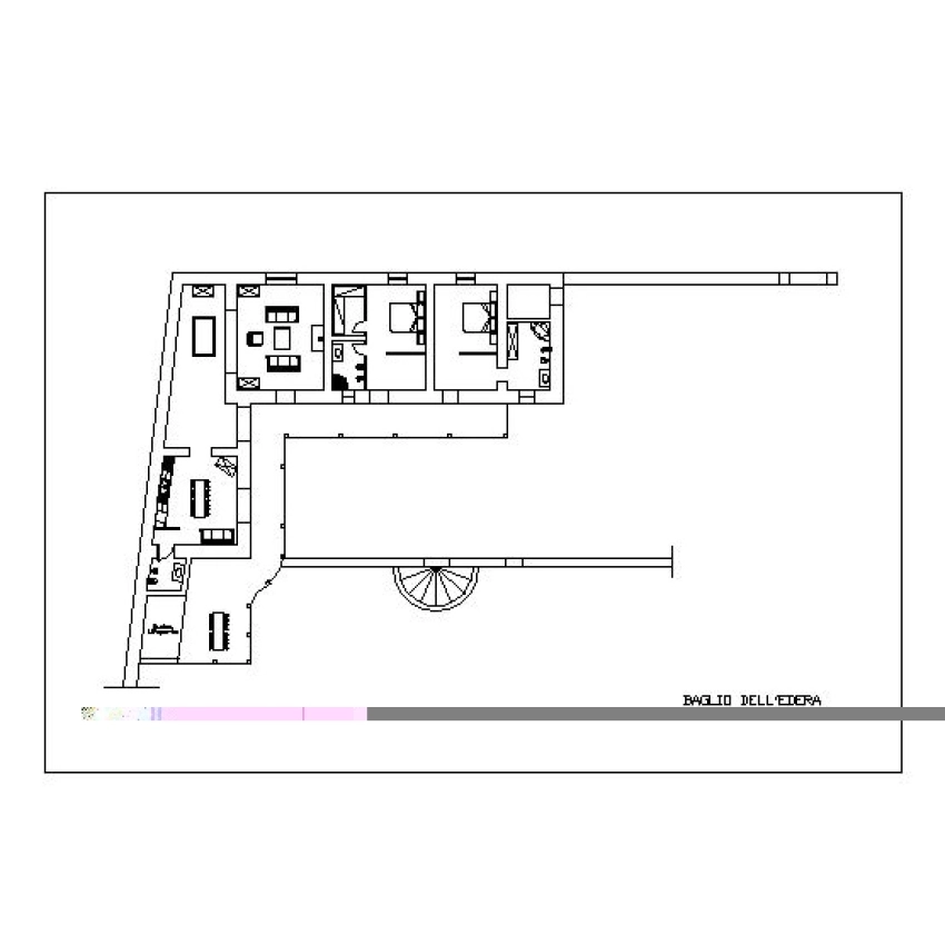
Caratteristico baglio siciliano , nel territorio del Barocco Siciliano nel Val di Noto, è un ottimo investimento per realizzare una casa vacanza che può diventare una opportunità di reddito, dal fascino tradizionale siciliano. Il baglio è composto da un fabbricato a elle con pietra a vista della superficie di 230 mq. Presenta pavimenti in basole di pietra, la ex stalla custodisce una caratteristica mangiatoia in muratura con bordo in legno e la tipica pavimentazione in acciottolato, l’altezza media del fabbricato è di circa 3,50/4,00 mt. I muri a secco tipici di un contesto storico di campagna. Il terreno è di 3.000 mq con uliveto. I fabbricati, dotati di allaccio idrico ed elettrico, necessitano di essere ristrutturati. Baglio dell’edera si trova a 5 km da Modica e circa 20 km dal mare. L’immobile è fornito con progetto già approvato con piscina. Rappresenta una opportunità di villa in campagna con stile di vita SLOW Living."A characteristic Sicilian 'Baglio', located in the heart of the Sicilian Baroque territory in Val di Noto. This property represents an excellent investment for creating a holiday home with traditional Sicilian charm and high income potential. The 'Baglio' consists of an L-shaped building with exposed stonework covering an area of 230 sqm. It features original stone slab floors (basole), while the former stable still houses a characteristic masonry manger with a wooden edge and typical cobblestone flooring. The average height of the build

Prezzo

Prezzo 145.000 €

Caratteristiche

Contratto Vendita
Tipologia Rustico - Casale
Superficie 230 m²
Giardino

Efficienza Energetica

Classe energetica In fase di richiesta
Stato Da ristrutturare
Riscaldamento Non disponibile

Questo Rustico - Casale si trova in SP32 a Modica

SP32, Modica RG

Case tra privati al tuo servizio

Scopri i servizi esclusivi che Case tra privati puó offrirti per questo immobile.

Parla con un nostro esperto
Hai dei dubbi? Il nostro staff é formato da TECNICI e LEGALI di esperienza. Potremo risolvere ogni tuo dubbio ed aiutarti in tutte le fasi di acquisto.
Contatta un esperto
Verifica la proposta d'acquisto
Vuoi stilare una proposta d'acquisto senza errori? Affidati ad un consulente d'esperienza.
Chiedi al professionista
Progettiamo la tua casa
Ti piace quello che hai visto ma vorresti che un professionista ti aiutasse nel progetto della tua "casa dei sogni"?
Chiedi all'architetto